











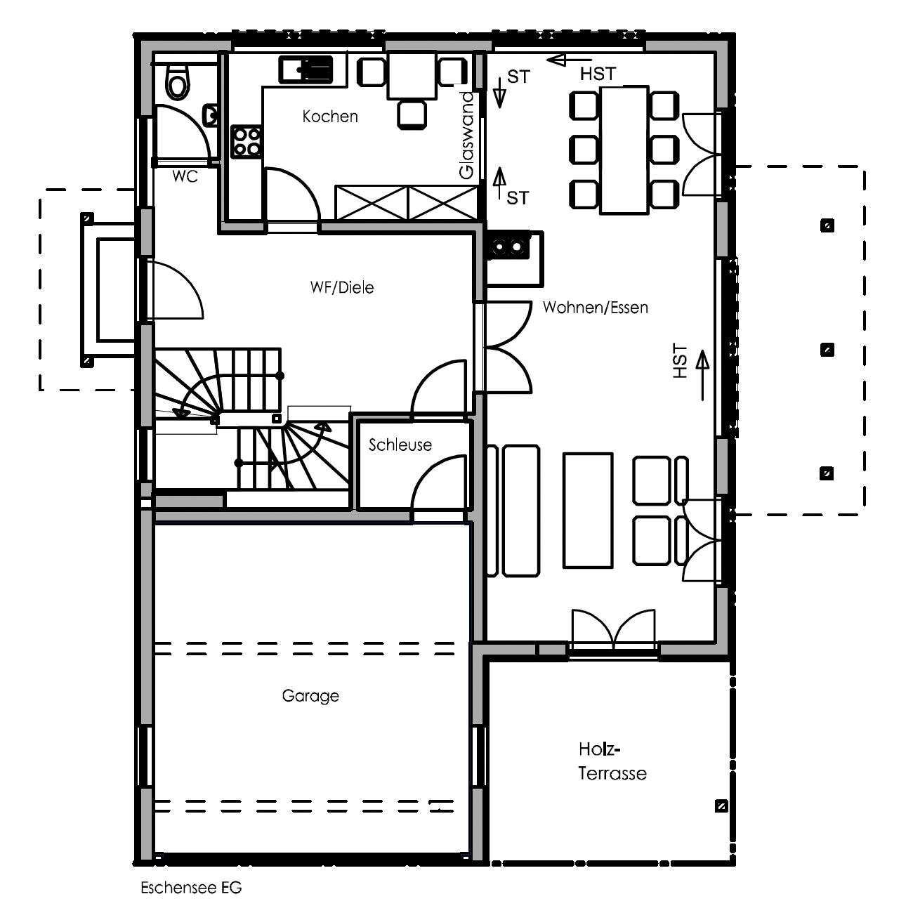
Haus Eschensee
Ausgezeichnet mit dem Deutschen Traumhauspreis 2019. Individuelle Architektur in Verbindung mit ökologischen Prinzipien. Durch die diffusionsoffene Konstruktion der Wände und Dächer, wird ein hervorragendes Raumklima erzielt. Im Sommer angenehm kühl und im Winter trocken warm.
Wichtiger Hinweis!
Mit dem Absenden des Formulars stimmen Sie den Hinweisen zum Datenschutz auf dieser Website zu. Diese finden Sie unter folgendem Link: Datenschutz
Musterhaus Poing
Senator-Gerauer-Str. 25, Parzelle 45
85586 Poing Grub
Musterhaus Mi. bis So. geöffnet
(jeweils auch an Feiertagen)
11:00 Uhr – 17:00 Uhr
Christoph Kellerer
B.Eng. (FH Rosenheim) Holzbau und Ausbau
+49 89 503039
+49 8024 3004-34
c.kellerer@isartaler-holzhaus.de
Werk – Musterhaus Holzkirchen
Münchner Str. 56
83607 Holzkirchen
Musterhaus Mo. bis Fr. geöffnet
10:00 Uhr – 12:00 Uhr
13:00 Uhr – 17:00 Uhr
Christoph Kellerer
B.Eng. (FH Rosenheim) Holzbau und Ausbau
+49 8024 3004-34
c.kellerer@isartaler-holzhaus.de
Simon Vittinghof
+49 8024 3004-28
+49 173 9183037
s.vittinghof@isartaler-holzhaus.de
Georg Doll *
Dipl.Ing.(FH) Architekt
+49 173 4628379
g.doll@isartaler-holzhaus.de
Hauptstraße 26
82433 Bad Kohlgrub
Oliver Hutzelmeier *
+49 911 98128518
+49 152 04426102
o.hutzelmeier@isartaler-holzhaus.de
Gustav-Zindel-Str. 9c
90455 Nürnberg
* Externe Vertreter